Australia

Images for Lot 8 28 Wentworth Court, NAMBOUR, QLD, Australia, 4560

Check out our new Statistics area.
Average Price Statistics ... Average Price Statistics

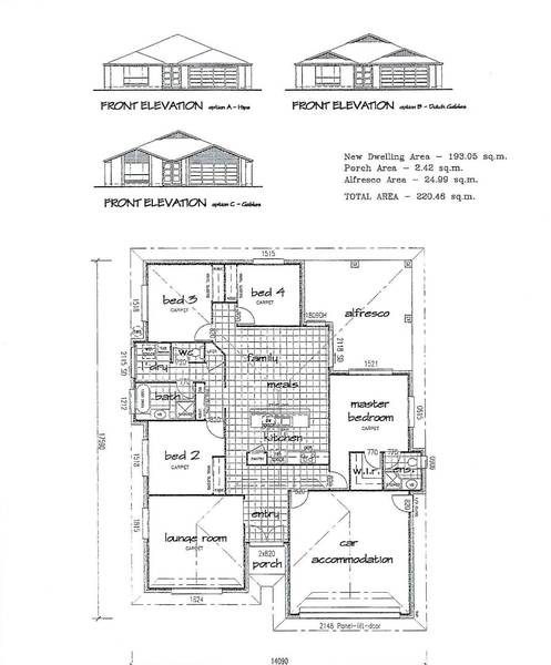
Brand New Home Off The Plan Picture 1

Brand New Home Off The Plan Picture 2

<<-- Return to Post Details