Australia

Images for Lot 26 Cartwright Street, BRIGHTON, TAS, Australia, 7030

Check out our new Statistics area.
Average Price Statistics ... Average Price Statistics

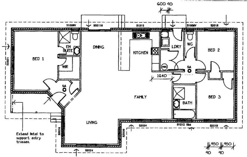
BRAND NEW HOUSE AND LAND PACKAGES Picture 1

<<-- Return to Post Details