Description
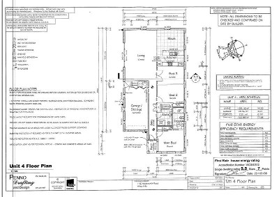
With construction due to commence shortly, First home builders can qualify for $36,500 by signing a contract prior to September 30th 2009. Early birds receive substantial stamp duty savings. Comprising three bedrooms with ensuite and w.i.r to the main, 3 piece bathroom, and an open plan kitchen meals and living area. Additional features include: r/c heating and cooling, single garage, high quality fittings and fixtures throughout. REMARKS: Ideal for first home buyers and investors looking for value and location Floor plans, site plan and detailed list of inclusions available.
Was for Sale
- Publish Date: 13-10-2009 20:42:13
- Contact name: Matt Leonard
- 129 times displayed
- Website: www.tsfn.com.au
- Location: Australia
- Business: Tweed Sutherland First National
- 3
2
1 
- Price: $235000
Place:
4/146 Holdsworth Road, BENDIGO, VIC, Australia, 3550
Average Price in BENDIGO ...



