Description
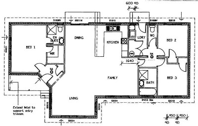
Currently under construction are these quality built three bedroom, 2 bathroom homes. The master comes equipped with a walk in robe and ensuite. There is also a separate formal entrance with cloak closet. The living area is open plan and very spacious. The kitchen is loaded with cupboard space and a pantry. Also having quality stainless steel appliances. This would be one of the builders most favoured floor plans.
Was for Sale
- Publish Date: 08-11-2009 03:05:11
- Contact name: Cheryl Reddick
- 187 times displayed
- Website: www.mcgregorfn.com
- Location: Australia
- Business: McGregor First National
- 3
2 
- Status: sold
- Price: $240000
Place:
2 Cartwright Street, BRIGHTON, TAS, Australia, 7030
Average Price in BRIGHTON ...


