Australia

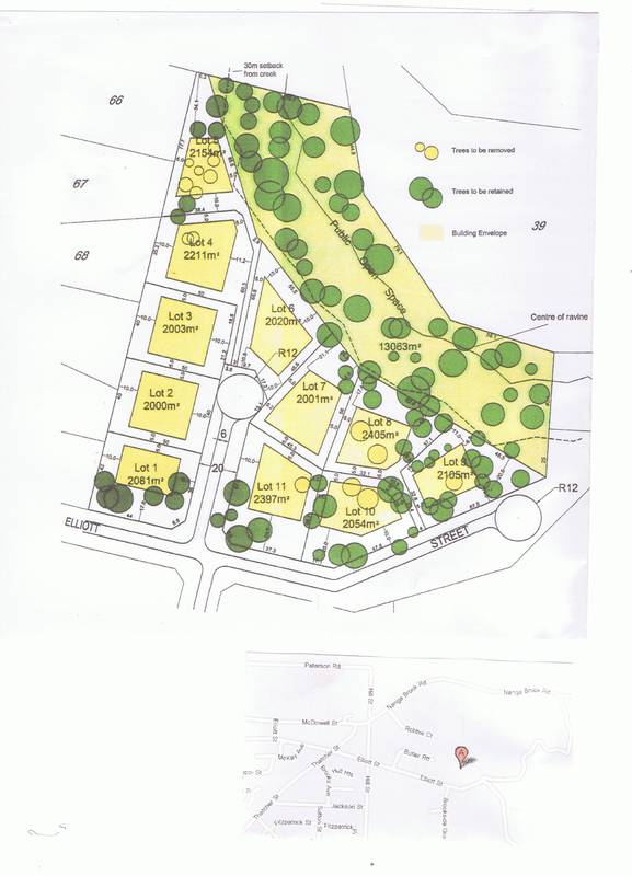
Images for Lot40 Elliott Street, WAROONA, WA, Australia, 6215

Check out our new Statistics area.
Average Price Statistics ... Average Price Statistics

INVESTORS/DEVELOPERS- A GREAT OPPORTUNITY AWAITS Picture 1

<<-- Return to Post Details