Description
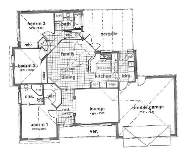
This desirable 1326m2 site dimensions being 60.27m long & 22m wide. Complete with planning permit for 4 dwellings and house plans. Ideal for a developer, owner occupier or investor after the permit to suit your needs. Great location close to Centro. Services available.
Was for Sale
- Publish Date: 23-01-2009 23:32:44
- Contact name: Trevor Rogers
- 111 times displayed
- Website: www.collieandtierney.com.au
- Location: Australia
- Business: Collie & Tierney First National
- Price: $150000
Place:
Lot 4 Etiwanda Avenue, MILDURA, VIC, Australia, 3500
Average Price in MILDURA ...




