New Zealand

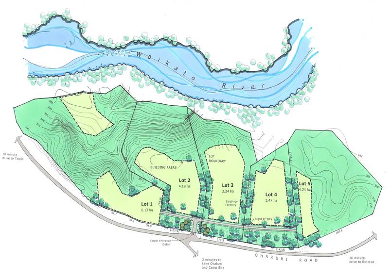
Images for Lot 2 Ohakuri Road, ATIAMURI, BAY OF PLENTY, New Zealand, 3291

Check out our new Statistics area.
Average Price Statistics ... Average Price Statistics

LAKE OHAKURI Picture 1

LAKE OHAKURI Picture 2

LAKE OHAKURI Picture 3

<<-- Return to Post Details