Australia

Images for Jonathon Road & Lisbon Circuit, ORANGE, NSW, Australia, 2800

Check out our new Statistics area.
Average Price Statistics ... Average Price Statistics

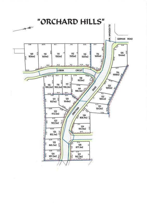
Ochard Hills Estate, Orange Picture 1

Ochard Hills Estate, Orange Picture 2

<<-- Return to Post Details