Description
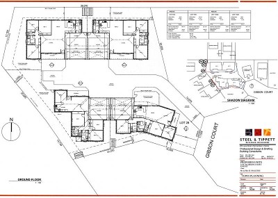
Just a short drive to Koroit's CBD or tower hill is this 1800m2 development site. Featuring new surroundings, a peaceful atmosphere and approved plans and permits for 4 townhouses. This is perfect for the first time developers of even the seasoned developers looking to expand their real estate port folio. Call us today and make this site yours.
Was for Sale
- Publish Date: 14-02-2010 22:08:11
- Contact name: Daniel Roberts
- 203 times displayed
- Website: www.robertsone.com.au
- Location: Australia
- Business: Roberts One Real Estate
- Price: $240000
Place:
5 Gibson Crt, KOROIT, VIC, Australia, 3282
Average Price in KOROIT ...


