Description
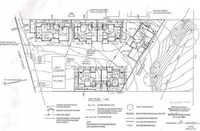
Strata Development * Approved strata villa development on 2 lots * Approved for 6 villas * Close to shops, transport, club & swimming pool * DA Approved for 2 x 3 bedroom villas & 4 x 2 bedroom villas * 4047m2 block All the effort of approval has been done, An opportunity to "Cash In" and develop these villas. Be quick to take up this golden opportunity!! To view all of our listings go directly to our website www.kewfn.com
Was for Sale
- Publish Date: 23-01-2009 21:49:05
- Contact name: Ian Jackson
- 177 times displayed
- Website: www.kewfn.com.au
- Location: Australia
- Business: Kew First National Real Estate
- Price: $325000
Place:
27a Albert Street, KENDALL, NSW, Australia, 2439
Average Price in KENDALL ...


