Description
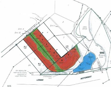
An approved development permit is now available for a 3.2-plus hectare land and development site, allowing for a 10-lot subdivision from 2,254 to 3,920 square metres of General Industry classified property and located close to major motorways. Otherwise, design and construct your your own specific purpose building as large areas like these can be hard to secure in this market Land area 3.2 ha Usable area almost 30,000 m2 10 Lot Subdivision Motorways nearby Owner funded earthworks Competitively priced with neighbouring sites * Divisions from 2,254 to 3,920 m2 For further information on this property please contact George Koukides on 07 3840 5922 or 0412 872 786. georgek@commercialfn.com See all our properties at www.commercialfn.com
Was for Sale
- Publish Date: 16-10-2009 15:14:00
- Contact name: George Koukides
- 125 times displayed
- Website: www.metrofn.com.au
- Location: Australia
- Business: Metro First National
- Price: $3000000


