Description
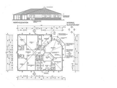
* Start Up Rent $30,000 pa + GST * Purpose Built Medical Centre * 3 Consulting Rooms, 1 Treatment Room, Reception Area, Pathology, Dispensary, Waiting Room * 15 Parking Spaces * Security Surveillance System * Located In A Growing Housing Estate, Close To Retirement Village And Soon To Be Built Shopping Centre. * Ideal Location For Medical Centre * To Be Completed By July, 2008 Call Rick Lauretta or Judi McCormack
Was for Sale
- Publish Date: 13-02-2008 17:14:41
- Contact name: Cranbourne (24 Hours)
- 138 times displayed
- Location: Australia
- Business: Finning First National Real Estate
Place:
1-3 Brindalee Place, CRANBOURNE EAST, VIC, Australia, 3977
Average Price in CRANBOURNE EAST ...


