Description
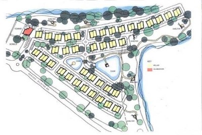
Concept plan for: 38 quadplexes and Residents Club including bowls and tennis grounds. This property is only 12km * to the Gold Coasts Beaches, and only 3km* to Nerang Shopping centres. The property neighbours the prestigious & exclusive Grand golf course. The council has designated the Gilston activity centre approximately 300 metres to the south. Land area: 5.87* hectares Zoning/Precinct : emerging Communities (Rural) Lot 1 Sp 188410 Par: Gilston Sale of Freehold Land *Approx only
Was for Sale
- Publish Date: 06-10-2008 10:58:00
- Contact name: Brad Merkur
- 538 times displayed
- Website: www.commercialfn.com
- Location: Australia
- Business: COMMERCIALFNCOM Gold Coast
- Price: $3000000
Place:
450 Gilston Road, GILSTON, QLD, Australia, 4211
Average Price in GILSTON ...



